• Вышел новый выпуск программы ФлайтТВ, посвященный современным российским ЮПШ (юношеским планерным школам).
    Видео на Youtube. Ссылки на другие платформы и обсуждение в теме на форуме.

Аэродромы, небо и немного пилота-любителя - самолет "Северок"

Thread moderators: Vi-kTo-R
Друзья, приветствую.

Хотел бы поблагодарить компанию Баск https://baskcompany.ru за приглашение посетить зимний семинар. Длился он три дня и включал много интересного. Новые коллекции, обсуждение свойств одежды, экскурсию на цифровую фабрику и т.д.

Я приехал уже под вечер четверга и увидел много знакомых лиц из компании. В частности Влада Ивашкина и Надежду Герасимову.
Был рад пожать руку директору, Владимиру Федоровичу Богданову и его замечательной супруге Ольге.

На фото: Ольга Богданова и Владислав Ивашкин


6X3A7612.JPG


Не оставила меня равнодушным демонстрация фильма "На вершине", где рассказывалось о достижении Рустама Набиева, парня из Уфы не имеющего обеих ног, вершины Непала горы Манаслу (8163м)! https://www.youtube.com/watch?v=0ztz6zrvSeE

Со мной на общем фото девушка Аюна Бербидаева которая своим старанием и тренировками поднялась на гору Мунку-Сардык, главную вершину Восточного Саяна (3491м)
Конечно с группой поддержки, потому что Аюна не может ходить. Но силы воли ей не занимать.
Баск, замечательная российская компания, поддерживает таких людей, как Рустам и Аюна!

6X3A8810.JPG


Познакомился я и с остальными членами команды Баск. https://baskcompany.ru/team/
Каюры, альпинисты, фотографы, авто путешественники. Волевые люди. Командоры.
Так в компании называют тех, кто по роду занятий находится в Арктике, штурмует горы, проходит испытание ветрами и холодом.

6X3A8900.JPG


Пили горячий чай и кофе, разговаривали.

6X3A7523.JPG


За столиком мне составила компанию замечательная, Елена Волкова из Воркуты. Вместе с супругом они держат магазинчик в Воркуте, являются дилерами Баск. А сама Елена просто пример жизнерадостного, полного любовью к спорту и северной природе человека.

6X3A8813.JPG


Очень приятно, что каждую экспедицию #Bask внимательно сопровождает. Дает на испытание одежду и снаряжение, а после изучает экспедиционные отчеты и вносит изменения, которые делают вещи еще теплее и удобнее.

Спасибо!

6X3A9068.JPG
 
Привет, друзья и с наступающим Новым годом!
Напишу как идут дела.

Основная часть деталей для восстановления самолета уже прибыла в Москву от производителей самолета- компании Аэрос. Вторая часть, дай бог отправится ближайшие дни.
Спасибо большое Аэрос за помощь! Зная, что собранных средств мне не хватает, идут навстречу.

К сожалению путь деталей в Сергиев Посад не прост из-за ограничения длины в филиале транспортной компании. Крыльевые трубы вместе с обрешеткой имеют длину 4,3 метра. Могут привезти только 4 метра. Поэтому, вначале детали мне надо получить в Москве и, далее, искать и перевозить домой уже длинномерным транспортом.
Расходы на перевозку этой части деталей до Москвы уже превысили 50 тыс. руб. Хорошо, что был неприкосновенный запас.

Конструктор, Александр Чернов закончил переборку редуктора самолета Северок. Напомню, что данный редуктор создан специально для двигателя БМВ и с самых первых модификаций работает на моем самолете.
С 2013 года. Несколько раз серьезно модернизировался.
Созванивались вот только. У Александра Чернова сейчас отлаженное производство, подобранный штат и плотный график работы.
По моей просьбе конструктор установил новые валы и шестерни в корпус редуктора, а прежний рабочий механизм останется в мой ремонтный запас. Отправки редуктора ожидаю ближайший день. Спасибо, Сан Саныч!,
Сайт производителя AirGearBox350.com — Ещё один сайт на WordPress

Винт для самолета Северок будет изготовлен и отправлен ориентировочно к середине января. Роман Николаенко выполнит свой заказ и наш винт следующий на очереди. Роман основной и постоянный изготовитель воздушного винта и обтекателя для самолета Северок.
Сайт NRProp. Aircraft Composite Propellers

---------------------------------------------

Друзья, помните как в 2017 году при поддержке фонда ОДВФ (Общество Друзей Воздушного Флота) самолет Северок выполнил несколько экспедиций в Арктике и после получил единственное и неповторимое свое СЛГ.
Тогда я перегнал самолет в Московскую область из Воркуты.
Сертификационный центр ЭЛИЦ СЛА с экспертом Петром Корниюком профессионально осмотрели и облетали Северок и вскоре нам выдали так необходимый СЛГ.
Так вот, на нашем самолете вновь будет большая и красивая эмблема ОДВФ.

img_20170425_191701_2-jpg.236061


Олег Бондарев прими нашу благодарность за участие в восстановлении самолета!
Фото: апрель 2017г., облет самолета перед СЛГ, слева Олег Бондарев, Петр Корниюк.

img_1418-jpg.236014


Продолжается сбор средств на восстановление самолета Северок.

Хотел бы сказать огромное спасибо всем, кто уже поддержал нас. На данный момент это 39 человек и, конечно же активны наши форумчане. Спасибо, коллеги!
Собрано больше 70 000 руб, что составляет четвертую часть от нужной суммы на новые детали и обшивку планера.

Новый новогодний красочный календарь от самолета Северок выходит из печати 27 декабря.
Заказать календарик и помочь восстановлению самолета можно здесь https://planeta.ru/campaigns/severokplane
Можно отправить деньги и на экспедиционную карту сбер 4276 1609 1615 9677. Получатель Виктор Владимирович М.
Если не трудно сообщайте в личку.
 
Дорогие друзья!
От всей души поздравляю Вас с Наступающим Новым 2022 годом!

Так хочется, чтобы он дал нам больше спокойствия и здоровья, чтобы наши родные и все люди вокруг меньше болели, чаще улыбались. Чтобы близкие и друзья не уходили от нас, а детки чаще смеялись вокруг и плакали только когда появляются на свет ))

Чтобы каждому человеку жилось радостнее, интереснее и благосостояние наше всенепременно улучшалось!
Вроде ничего не забыл 🙂

На фото я и домашний снеговик СНЕЖОРИК с новогодними календарями и блокнотиками от #самолет_Северок ! Мы получили их из печати и вскоре они полетят к моим друзьям по адресам!

С Новым годом, друзья!
Спасибо за поздравления! Обнимаю Вас!

20211231_120324.JPG 1.JPG
 
Друзья, авиаторы и все кто так или иначе причастен - привет от всей нашей дружной семьи.
Рад поздравить с наступившими праздниками - замечательным Новым Годом и Рождеством! Очень желаю идти всем вперед и ни за что не останавливаться на достигнутом!
Еще хотел поблагодарить Вас- своих коллег- тех, кто читает мою страничку и поддерживает полеты в Арктике.

Город Сергиев Посад. Парк Скитские Пруды.

20220102_153951.JPG 1.JPG


Утки любят авиаторов ))

80.JPG


К новостям от самолета Северок.

В конце декабря я сообщал, что детали для самолета от компании Аэрос прибыли в Москву. Действительно детали прибыли, и на мои имя, но они оказались не для моего самолета.
Может это детали для другого хорошего человека и отличного самолета, только это и утешает. Я их даже и не получал, ошибка выявилась когда я готовился выезжать в Москву.
Что же, повторно груз вышел сообщили от Аэрос и курьера буквально через несколько дней- к 27 декабря. Спасибо Сергею и Олегу Глебовичу за оперативную работу. Но шансов уже не было - детали застряли на время праздников на одном из грузовых терминалов. Снова потерял драгоценное время.
Но теперь праздники кончились и я думаю, что все это двигается к Москве. Возможно ближайшие дни сообщат о прибытии из транспортной компании Энергия. Буду держать вас в курсе.

Были на связи с Александром Черновым.
Все работы по сборке редуктора завершены перед самым Новым годом. Сан Саныч с помощью помощника умудрился отправить редуктор 31 декабря компанией СДЭК и вчера я его получил. Молодцы, что качественно запаковали, проложили плотно картонными закладками. Стянули коробку ремнями.

редуктор.JPG


В редукторе А.Черновым заменены основные валы и шестерни, механизм прошел прошел полную диагностику и проверку.
По моей просьбе узлы снятые при замене, отправлены с редуктором. Валы и шестерни также остались полностью работоспособны после жесткой посадки и удара винта об землю.
Спасибо за ответственную работу, Сан Саныч!

20220110_182413.JPG
 
Последнее редактирование:
Как это ни страшно и печально, мы продолжаем терять друзей, близких людей, земляков.

27 декабря умер Александр Бурков. 26-го у него был ДР. 58 лет.
Апрельское сообщение на Одноклассники от Саши
- Витя привет! вот посмотри на досуге про Малую авиацию на Западе. У них по моему все проще в отношении полетов. https://www.youtube.com/watch?v=Joq6QU9Fm3Y&t=16s
- У них все проще, Саш, ты прав. Ну, если, мягко сказать..
- Да я все еще смотрю, и просто в ах....е), там все для людей, у нас какой то гемор во всем и везде.

Архангелогородец, Диксончанин. Саша как и многие романтики Севера любил фотографию и уехав с Диксона продолжил заниматься ею уже профессионально.
С 2012 года, зная о том что я планирую полеты в Арктику был постоянно на связи.
С 2014 года маршрут к острову Вайгач я с Сашей обсуждал и проложил специально через Карпогоры . Но пройти этим маршрутом мне удалось только в 2016 году.
В 2015м и 2016м году мы с Александром Бурковым создали эмблемы посвященные перелету самолета Северок на Диксон и Вайгач. Все творческие работы на кружках майках и вымпелах отправились по адресатам из Карпогор от Саши Буркова. Наши форумчане точно получали эти красочные вымпелы, майки и кружки.

В апреле 2016-го Александр Бурков встречал душевно самолет_Северок у себя в поселке с друзьями - местными авиаторами.

i (1).jpeg


Северок шел тогда на Вайгач.

i.jpeg


5 января ушла теть Рая Няма (Максимова).

Очень добрый и отзывчивый человек. Можно смело сказать, что одна из старейших зимовщиц Диксонского района. Ей было 86 лет.
Далекой весной в 1995м году экспедицией на одном вездеходе я с товарищами пришел с Диксона через полярную станцию Правда в архипелаге Норденшельда в устье реки Таймыры.

На зимовке на острове Бэра нас встречала чета Няма. Теть Рая с супругом Вениамином
С 2016 года Раиса постоянно следила за моими полетами. Поздравляла с праздниками авиации и ДР.
На фото: слева Вениамин и Раиса

1.jpeg


Что Саша Бурков , что Раиса Няма, эти люди для поселка Диксон значили много. Они были порядочные, спокойные и делали жизнь в поселке и за сотни километров от него, более яркой и насыщенной. Очень разные, но в тоже очень нужные Арктике люди.

Отдельно хочется сказать, что для Диксончан и всех кто постоянно жил и живет в Арктике, кто понимает сложность расстояний, кто часто сталкивается с необходимостью быстро добраться до зимовки, до своего поселка, до близких людей, авиация остается очень востребованной, а профессия пилота уважаемой и очень ценной.
И этих людей, местных жителей, северян становится все меньше. А авиация в России так и остается в масштабах страны совсем не прогрессивной, а инертной и не развитой.

На Диксоне 8 января сгорело новое модульное здание аэропорта.

Ужасно жаль..
 
Последнее редактирование:
Продолжается сбор средств на восстановление самолета Северок и предстоящую экспедицию в Арктике.
Поддержать восстановление самолета и получить памятные бонусы, включая ежегодный календарь от самолета Северок можно здесь
Экспедиция «Под северным небом»

Сегодня отправились по адресам памятные календари в Ленинградскую обл и Москву, Воркуту и Надым, Уфу и Казань, Владикавказ и Новороссийск. Каратайку, Нарьян-Мар и Ухту.
Несколько календарей отправлены в благодарность моим друзьям за помощь в эвакуации частей самолета.
Огромное спасибо всем!

календ.JPG


Можно отправить деньги непосредственно на экспедиционную карту сбербанка 4276 1609 1615 9677. Получатель Виктор Владимирович М.
С этой карты закупается необходимое снаряжение и происходят оплаты по восстановлению самолета.

Хотел бы поблагодарить всех своих друзей, кто принял участие на Планете https://planeta.ru/campaigns/severokplane
Совсем недавно мы перешли психологическую планку в 100 т.р. Чтобы проект был успешным нужно еще 50 тыс. руб.
Осталось 11 дней.
 
Последнее редактирование:
Полярник . Так наверное нужно назвать Виктора. Большое желание и силы этого человека, помноженное на помощь друзей( любителей малой авиации) вернет его покорять просторы Севера. Успехов в восстановлении Северка . С уважением В.М.Денисов 🤝 🙂
 
Очень живописный и мотивирующий календарь. Доехал, спасибо! Будем и дальше следить за вашими успехами, событиями и, конечно, поддерживать!
 
Привет, Малые авиаторы!
Telakh, vovan.sloboda, спасибо!


Спасибо всем кто следит за веточкой, сочувствует, помогает. Удачи вам!
Несколько новостей с фронта восстановительных работ по самолету Северок, да и так, просто новостей.

Первая и самая главная новость - к 20му января я наконец-то получил основные детали для ремонта своего Скайрейнджера! Транспортная компания Энергия по моей просьбе с южного московского терминала перевезла груз с Белоруссии на терминал -Ярославское шоссе. Без доплаты - удобный сервис. Отзывчивые грузчики помогли аккуратно погрузить упаковку из труб и ящик с пластиковыми деталями.

Под ящиком видна старая обшивка от самолета. До сих пор приносит пользу - защищает сиденья в авто и участвует в авиа работах 🙂

20220119_133834.JPG 1.JPG


Спасибо. нашему форумчанину, Алексею из Пушкино, предлагавшему помощь и прицеп для перевозки. Справились своими силами.

Моя верная помощница, старенькая Тойота тихонько с незакрытым багажником из-за 4-х метровых крыльевых труб, упорно везла 200-километровым маршрутом такие долгожданные детали из Киева!


20220119_144629.jpg 1.jpg1.jpg


Вот же зараза, при погрузке сильно вывихнул или потянул руку. До сих пор хожу с опухолью на запястье.

Обшивка, трубы, пластик, крепеж. Спасибо компании Аэрос, Сергею Сергеву, Олегу Белоусу и курьеру Сергею за ответственное отношение и упаковку, все дошло хорошо, в обрешетке, без повреждений. Так приятно было увидеть яркую и родную для моего самолета желто-красную обшивку!

3.JPG


К сожалению первая предновогодняя накладка с отправкой, сказалась. Часть моих деталей получил и отправил по моему адресу форумчанин Anser из Питера, которому тоже досталось от этой неразберихи. Спасибо за отправку, Сергей!

5.JPG


И пока еще не хватает части очень важных деталей.
Основной трубы самолета номер 9, подкосов с контрподкосами, рам сидений, обшивки одного закрылка.
Но, уже можно и нужно активно начать работы, используя временно старые детали и новый основной силовой набор труб!
 
Спасибо за оценки, друзья!
Начатые работы включают в себя перепись поступивших деталей. Их соответствие тем, которые установлены на вывезенном из Арктики и спасенном самолете Северок.

На фото: ревизия прошлым летом.

20210620_103851.JPG


Было бы очень здорово, если бы трубы были подписаны перед отправкой от производителя, а крепеж хоть немного сортирован. Знаю, что в Аэрос тоже был напряженный график работ осенью, заказов на производстве хватало. Старались успеть помочь всем, а тут и напряженка перед НГ.
Все понимаю и от души желаю им благополучия!

4.JPG


День у меня ушел на всю перетряску, понимание что-куда приставлять, складирования, фасовку болтов по длине и диаметру.
На фото крепеж снятый с самолета и несколько новых болтов, для понимания, что происходит с металлом при круглогодичном нахождении самолета вблизи северных морей.

1.JPG


Помимо всех новых болтов, заказанных в Аэрос я приобрел полный комплект нержавеющих шайбочек и гаек на весь самолет. 1600 руб. обошлось через интернет магазин Всеинструменты. Хоть и Китай и магнитит слегка ))
Огромное спасибо тем, кто помогает в восстановлении!

2.JPG


На дворе зима, мастерская у меня хоть и теплая, но маленькая - самолет в неё не поставить. Поэтому разношу все по разным местам. Что на антресоли, что в сарай, что на чердак дома.

А тем временем снег в Подмосковье потерялся во времени и все продолжает и продолжает идти...
Обычная детская площадка уже больше напоминает археологические раскопки где нибудь в Египте.

6.JPG
 
На фото крепеж снятый с самолета и несколько новых болтов, для понимания, что происходит с металлом при круглогодичном нахождении самолета вблизи северных морей.
В морском климате оцинкованные болты чувствуют себя лучше чем кадмированные.
Сборку соединений делать на пушечном сале.
В процессе эксплуатации периодически брызгать на все силиконовой смазкой. Особенно хорошо работает защита для лодочных моторов.
Например вот такая: Купите Универсальную антикоррозионную смазку FCG*ANTI CORROSION и продлите срок безаварийной работы лодочного мотора на много сезонов вперед.
 
Начало работ. 29 января.

Мы все болеем. Из пяти человек в семье болеют четверо, Как-то мимо дочки нынче все прошло. По ощущениям обычный грипп, температура 39, сопли , горло - ничего хорошего. Вкус и запах никто не терял, тесты тоже не сдавали - это для села и не так просто и не так дешево. Если учесть, что заразой мы переболели почти 2 года назад, то относимся ко всему стоически.
Чай с малиной, арбидол, мед и .. лопату в руки чистить снег во дворе.
Ну или самолет собирать ))

Идет сборка нижнего и верхнего треугольника кабины самолета. Работаю используя книгу по сборке самолета, доставшуюся мне по наследству от Юры из Молдавии. Часто просматриваю руководство скачанное с сайта Аэрос. С книгой оно перекликается. AEROS - SKYRANGER
Если к нижнему силовому набору труб вопросов не возникло -стальная труба №9 на схеме и две дюралевые, толстые, бужованые с двух сторон №7, то верхний узел меня разочаровал.

Две трубы номер 10, не имеют усиления(бужа) в передней части и ничего удивительного, крепежные отверстия в них значительно расширены нагрузкой от болтов. Я прямо вижу как появилась эта проблема. За время эксплуатация было много случаев. когда к передней части самолета нет возможности подобраться, к примеру утонула в пухляк передняя лыжа или попал в вязкий песок передним колесом. Тогда выход один, нагружая хвост собственным весом, поднимаешь нос самолета.

DSC_0021.JPG


Вот тут и получает растяжение верхняя линия труб фюзеляжа. И первыми идут как раз трубы 10

Без имени.JPG


Ничтоже сумняшеся беру и вытаскиваю из старых поврежденных труб бужи и вставляю в свои рабочие трубы 10. Понятное дело приходится сверлиться, ставить заклепки, резать лишнее болгаркой.
Переход бужей из правой в рабочую левую трубу отражен на фото. Было бы здорово если бы и в Аэрос услышали нас.

20220129_180112.JPG


20220129_184111.JPG


Окончание сборки силовых треугольников кабины. Ура! Можно поднять бокалы 🙂

7.JPG


------------------------------------------------------

На предыдущей страничке я говорил о том, что в Воркуте чудесным образом нашлись мои часы Касио, которые я покупал когда учился летать в Челавиа. Часы с компасом, альтиметром и барометром.
Батарейка в них умерла пока часы лежали несколько месяцев в темноте, а ведь она проработала 12 лет! Найти было не очень просто этот маленький аккумулятор подзаряжаемый от солнца. Обошелся 800 руб на Али экспрессе и ехал до нас 3 недели.
Замена тоже непростая и аккуратная и вот, часы начали вторую жизнь!

8.JPG


9.JPG


-------------------------------------------------

Наш проект посвящённый восстановлению самолета Северок и работе Малой Полярной авиации на Планете вышел на финишную прямую! Времени остался месяц - до конца февраля и мы с вами уже собрали больше 50 процентов средств. Проект стал успешен! В этом немалая заслуга наших форумчан, среди них и пилоты и самодельщики и администраторы. Огромное спасибо вам, коллеги!
Считаю это отличным результатом, учитывая закошмаривание Малой авиации всемогущими чиновниками всех мастей нашей необъятной России. Практически игнорирование нас государством.

Поддержать проект несложно, перейдя по ссылке Планета
Можно помочь и непосредственно на экспедиционную карту сбер самолета Северок 4276 1609 1615 9677.
Получатель Виктор Владимирович М.

Продолжение следует и будет, несмотря ни на что! ✈✈✈
 
Последнее редактирование:
Почему то существуют 2 (два) одинаковых сайта Планета ру. И номера телефона нет НИКАКОГО, никакого... 🤔
Что сие значит? И моя программа против шпионов , их указывает. На персональном ПК. А у вас есть их номер телефона, как организации?
Но не электронного информатора. А ЖИВОГО человека? Почему масквачи ПРЯЧУТСЯ. А????
 
Да! И почему там обязательнтно надо регистрироваться в «личном кабинете» с указанием всяческих персональных данных? Почему нельзя анонимно? А то я пожертвую, а потом Виктор ненароком станет «иностранным агентом»! А нам Виктор дорог исключительно как ПАТРИОТ!!! А то ему пропуск в «погранзону» потом не дадут…
 
Михаил, Madras, приветствую.
Почему-то второй сайт Планеты я найти не смог. Вам надо было бы для справедливости и ссылку на него прикрепить.
Вы же меня спрашивали и в личной переписке с вами обсуждали условия участия на Планете. И для многих форумчан кто уже участвовал и поддерживает восстановление самолета Северок вряд ли приятно начать сомневаться в том, что деньги дошли до проекта. Спасибо за личное сообщение с извинением.
Дошли, все в порядке, мне как организатору видно каждый рубль от кого и когда пришел. Также я принял за обязанность оперативно отправлять созданные сувениры нашим форумчанам, кто их приобрел в поддержку восстановления.. Каждому отправлено уведомление.

Вот ссылка на мою страничку

Так сейчас выглядит сбор средств

Безымянный.jpg


И еще.
Почти 50 процентов на Планете вложено мною средств, которые были собраны ранее на восстановление самолета. Иначе при нынешнем интересе людей к Малой авиации мы не собрали бы и 50 процентов и все деньги были бы отправлены обратно отправителям.
Конечно надежды у меня не оправдались ведь не набрав 100 процентов, Планете надо будет отдать 15 процентов, а не 10. И плюс еще налог государству 13 если правильно помню. И созданные и отправленные сувениры как приличная часть расходов.
Ну что же, очень нужен каждый рубль, других вариантов быстро поднять самолет в небо у меня нет. И Планета это тоже первый опыт. Теперь бы я создавая проект сделал по другому.

vladk, благодарю.
Думаю как раз поэтому и нужно регистрироваться, чтобы мне была возможность отправить по адресу заказанный сувенир. А для того чтобы просто помочь скажем из-за границы или инкогнито на Планете есть несколько платежных систем, они указаны в разделе "другие способы оплаты" и выглядят так
Да и ссылку на свою карту сбер самолета Северок даю постоянно 4276 1609 1615 9677
Получатель Виктор Владимирович М.
 
Последнее редактирование:
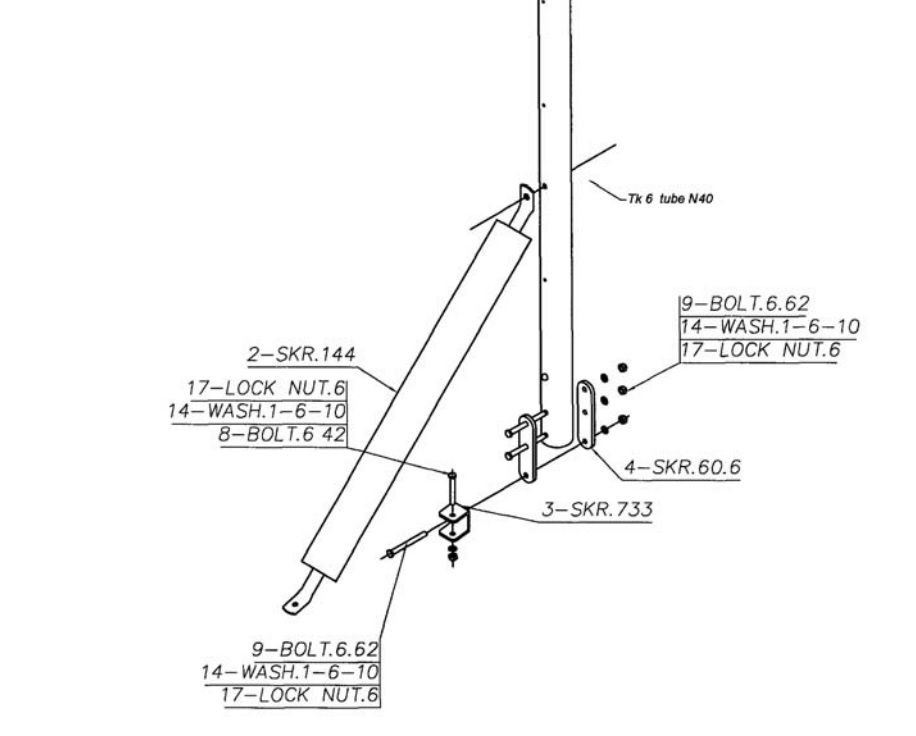
Закончены треугольники кабины, задняя стенка с диагональными трубами.

Пока все подмеряю и монтирую на основную стальную трубу номер 9, пострадавшую при посадке самолета в проливе Югорский Шар. Новую трубу очень жду, как и остальную часть деталей.
Благодарю Олега Белоуса из Аэрос за внимание к проекту восстановления!

11.JPG


Постирал и переставил тканевые чехлы на новые поручни skr 144
На фото заметно, что прежние поручни разогнуты и имеют трещину
144.jpg


12.JPG


20220204_164740.JPG


Сейчас начинаю работу над сборкой новых труб с узлом управления РУС и верхней опоры моторамы.
Вот на фото эта деталь в нынешнем состоянии.
Стрелками указал проведенные ранее сварочные работы в тех местах, которые несут повышенные нагрузки, образуют трещины при работе самолета Скайрейнджер с полной нагрузкой на севере.

По центру деталь SKR 91, верхний узел передней стойки шасси имеющий круговые трещины и обваренный полностью. И центральные трубы SKR 19 имеющие поперечные трещины в этом же районе.

16.jpg


По рекомендации выше от Рябиков провожу смазку болтовых соединений и обрабатываю силиконом.
Спасибо большое друзья за внимание к восстановлению самолета и интерес к полетам Самолета Северок!
-------------------------------------
Фото 2 февраля, мой ДР.
Спасибо большое всем кто помнил и поздравил!
Слева, Александр Савинков постоянно помогающий по всем видам связи и по спутниковому трекеру АОПА-Россия во время полетов самолета Северок.
Справа, Дмитрий Кутало, технический руководитель экспедиций фонда Русь Исконная. Участник совместной экспедиции Путем Бегичева в 2015 году.

17.JPG
 
Последнее редактирование:
" Почти 50 процентов на Планете вложено мною средств, которые были собраны ранее на восстановление самолета. Иначе при нынешнем интересе людей к Малой авиации мы не собрали бы и 50 процентов и все деньги были бы отправлены обратно отправителям. "

Мне так кажется, вместо вложения в Планету и игру на интерес, вам просто надо было потратить их по делу.
Но я в азартные игры не играю. А так, мне нравится ваша настойчивость в восстановлении л.а.
Нынешнее поколение очень прельщает веселуха, наслаждюха, развлекуха. Увы, такова жизнь.
К стати, я еще просил номер телефона ЖИВОГО ЧЕЛОВЕКА, руководителя или менеджера Планеты!
 
Спасибо, voloha, приятно вспомнить.
Это весенняя слякотная погода была в Подмосковье. Снега много и липкий. Тогда на лыжах Северка еще не было уширителей, самолет безжалостно вяз на целине. Вдвоем взлететь не смогли, делал круг один.
Впереди старт экспедиции в Новом Уренгое.
 
Назад
Вверх