Follow along with the video below to see how to install our site as a web app on your home screen.
Примечание: This feature may not be available in some browsers.

Если кто возьмется, конечно...😉кит набор будут?
Вы правы, эта конструкция, в прочем как все "тряпкопланы" больше подходит для производителя Китов.я бы тоже такой кит приобрёл
очень жальВы правы, эта конструкция, в прочем как все "тряпкопланы" больше подходит для производителя Китов.
Но, Я не производитель и не планирую этим заниматься....
если вопрос ко мне да я хочу чтобы вы собрали мне такой планер естественно с позволения хозяина конструкцииХочешь, соберу....
Руслан, это не более чем частное мнение, пусть и достаточно опытного и квалифицированного специалиста. Есть и другие, прямо противоположные мнения, не менее опытных. ИМХО. Не считаю себя великим спецом в автожирах, но, тем не менее, лично мне проект Евгения очень нравится и я в него верю. Предвижу бухтение - потому и нравится что не спец. Каждый волен иметь свое мнение. Каждый волен решать что ему нужно.Вон что умные люди пищут про автожир ваш тянущи.
Да ты никак сожалеешь об этом?Все супер троли пропали.
Аэрофримана нету или аэрофренд как правильно говорить. Жалко что нет его. Все супер троли пропали.
Да ты никак сожалеешь об этом?
Да, есть такое, но это никак не связано с тролями. Я бы ответил словами Высоцкого - "настоящих буйных стало мало". Буйных в смысле горящих автожирами. Это какая-то общая тенденция, не только у нас на форуме. Точь в точь ситуация и на RW форуме и на SkyWolverines и на форуме у АБМа. Цитата из вчерашнего письма от Ивана Маковки - "... затишье какое-то, с автожирами, вообще тишина...". Ну и экономическая обстановка, короновирус - не способствуют росту интереса...автожирная ветка, стала намного кислее, чем была.
😄 Да уж! Последствия заметны сейчас!Ни чего. Лет через 10-15 нормально тут станет. Сейчас потерянное поколение 90х годов живет и рулит. Когда Путинское поколение выростит по лучше будет. Как то заметил молодые у нас с пивом и сигаретой во второй руке не ходят уже как раньше мы ходили каждый день до потери сознания пили ацетон и дихлофос добавляли чтобы торкнуло лучше. Куда не посмотри в пакет бензин наливают и дышат. Да уж. Что было.
Я не против если эту идею кто воплотит в реальную конструкцию.я хочу чтобы вы собрали мне такой планер естественно с позволения хозяина конструкции
Процитирую:Вон что умные люди пищут про автожир ваш тянущи.
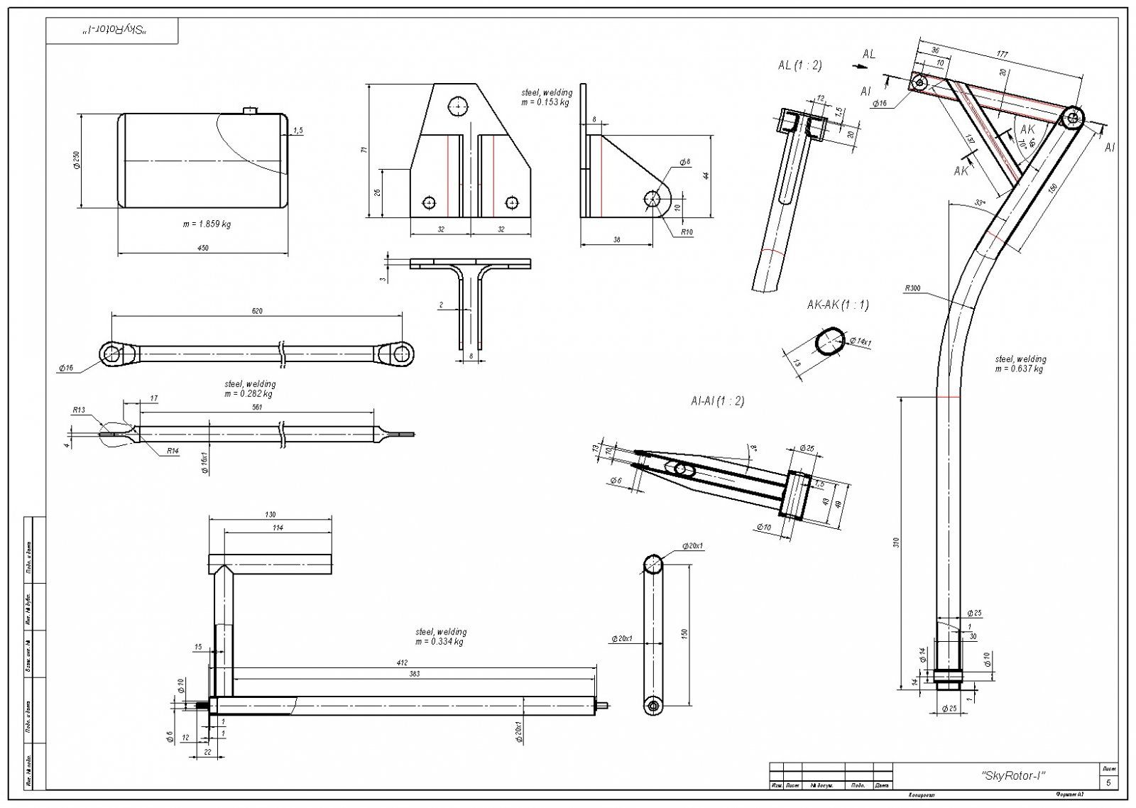
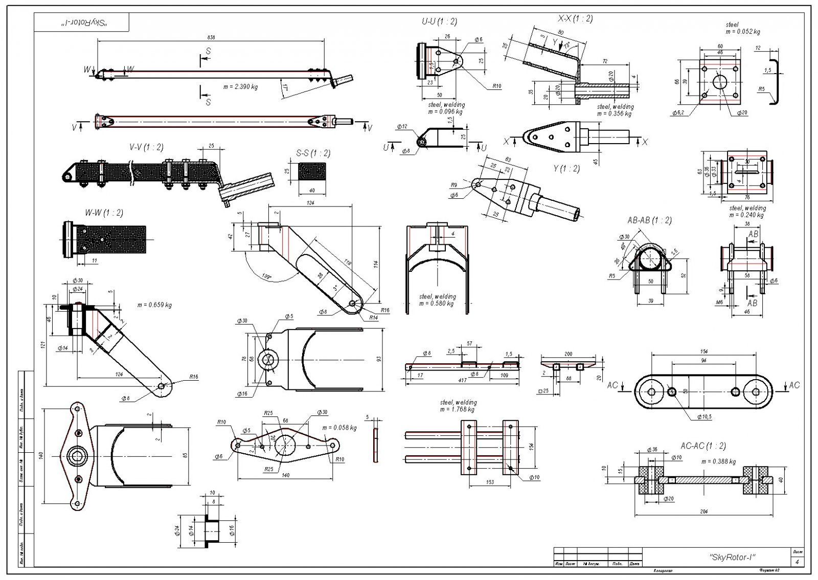
На счет многодетальности с Вами согласен.Но моё мнение слишком много в нём деталировки, намного сложнее он и дороже в изготовлении для самодельщика.