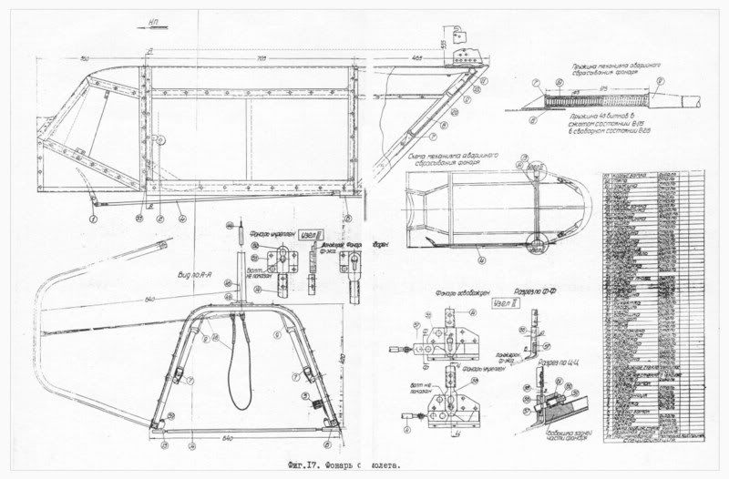
Сделал полик, зашил низ , боковинки, пока на клеко, поставил все стрингера, согнул рамку фонаря, установил РУД. Надо собраться с духом и раскроить стекло фонаря. Фонарь будет из одного листа с "кепой".
Follow along with the video below to see how to install our site as a web app on your home screen.
Примечание: This feature may not be available in some browsers.

Какой вес сейчас интересно? Мотор всё будет фолькс?
Да, фонарь Вы делаете не соответствующим нынешним трендам.
Но правильный
Доброго времени.Попробовал обтянуть стабилизатор термоусаживающейся тканью арт- 5360-79. Получается замечательно. Приклеил "восемьдесят восьмым" и утюгом 170 градусов. Натяжение отличное. Теперь надо чем то пропитать для воздухо не проницаемости, эмалит это конечно же классика но по сути он здесь лишний. Возможно применить ПВА состав например kleiberit 303.0 обещают водостойкость Д-3 при однокомпонентном варианте и Д-4 при двух компонентном. Опять же боязно экспериментировать, хотя я оклеивал тряпочкой на простой ПВА пенопластовые законцовки и обтекатели с последующей окраской нитроэмалью, много лет все было нормально и под дождем и под снегом.Может укого есть опыт и по термоусадке? Вроде в теме про бирхок писали, что пропитывали ПВА но сейчас не могу найти это сообщение.
Я общался со специалистами с МАРЗа, все в один голос говорили что только эмалит, и ничего кроме эмалита. Сам обтягиваю уже третье крыло этой тканью. 3 слоя эмалита, после ещё 1-2 слоя эмалит+серебрянка. Щлифовка-грунт-шлифовка-краска. Эмалит наносил широкой кистью, остальное пульвером. Вот этот аппарат весь обтянут по такой технологии...Теперь надо чем то пропитать для воздухо не проницаемости, эмалит это конечно же классика но по сути он здесь лишний.
От специалистов МАРЗа странно было бы услышать иное: любые риски, связанные с отступлением от директивной технологии, строго исключены. Поэтому, ожидать от них сколь-нибудь вменяемых аргументов не следует - они Вам не НИИ какой-нибудь.Я общался со специалистами с МАРЗа, все в один голос говорили что только эмалит, и ничего кроме эмалита.
Существенный плюс ПВА в том, что он не горюч.В общем, возможны варианты. Проведем эксперимент. Один образец проэмалитим, другой пропитка ПВА. Для меня интересно где получится легче.
Точно! Ткань пропитанная им гораздо хуже горит. С эмалитом как порох.И лучше держится на ткани при мех. воздействии на нее. Не отслаивается с синтетики как эмалит и не трескается так как создает эластичное покрытие.Существенный плюс ПВА в том, что он не горюч.
Это мой Икарус С-22 с 912 ротаксом. Всё про него и подобные в ветке ниже( сла зарубежного производсства, семейсво джетфокс икарус итд.)yurij78 подскажите, где можно посмотреть характеристики на этот самолет и какой двигатель стоит?