Изготовлю по чертежу рессору из д16т

Нужно такую.
 

Вложения

  • 0001_003.jpg
    0001_003.jpg
    29,4 КБ · Просмотры: 239
Григорий отверстия мы не сверлим.Кстати,вот заготовка этой вилки.Центр отверстий я накернил,но после гибки возможен небольшой уход размера.
 

Вложения

  • DSCN0585.JPG
    DSCN0585.JPG
    65,9 КБ · Просмотры: 210
Сергей , здравствуй. Я с тобой связывался 17 декабря, (смотри фото выше)
теперь высылаю эскиз рессоры, посмотри может что не так... и сообщи условия оплаты. Кузнецов Сергей, Алтайский край.
 

Вложения

  • DSCN2070.JPG
    DSCN2070.JPG
    16,9 КБ · Просмотры: 240
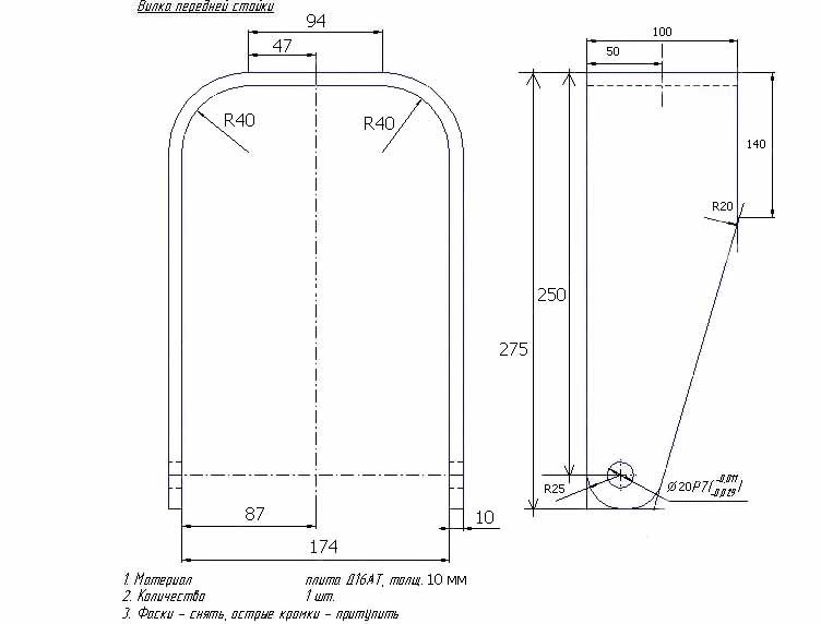
Добрый день. Нужна рессора на Арго. Нашел чертежи на форуме, но качество съемки,никакое.Посмотрите пожалуйста. Если для работы устроят такие чертежи. Буду заказывать у Вас.
  С уважением. Андрей.
 

Вложения

  • 23112007.jpg
    23112007.jpg
    154,7 КБ · Просмотры: 262
Товарищ прапорщик, разрешите обратиться.
Нет ли отходов или кусков брака приближенных к моему чертежу? Толщина 20, шириной 100.
Важные размеры:180 не менее ,380 может слегка отличаться, радиус гиба возможен и больше, угол гиба 90 возможно чуть больше. Главное симметричность деталей. Если нет, то  возможно ли заказать такие детальки из 20ки? Спасибо.
12891414.png
 
Роман, таких отходов к сожалению нет,придется резать из плиты.Отходы в основном вот такие:
 

Вложения

  • DSCN0587.JPG
    DSCN0587.JPG
    45,2 КБ · Просмотры: 254
А радиус гиба(гну на холодную) 80мм
 

Вложения

  • DSCN0589.JPG
    DSCN0589.JPG
    69,1 КБ · Просмотры: 205
Детальки сделаем,но еще добавлю,кромку скруглю-иначе будет БЗЫНЬ!
 
Понял. Буду на аэродроме(не сегодня), определю вписываюсь ли в R 80, и точный размер фланца стойки, чтобы не зацепить скругление. После приму решение на заказ.   Спасибо.
 
Делаем рессоры из 20-ки на любые самолеты.Давайте чертеж.
 
Сергей,приятно,что вам понравилось,буду стараться.Раз тему подняли и я вставлю пару слов.Рессора для Деда готова,развал 13 градусов.
 

Вложения

  • DSCN0595.JPG
    DSCN0595.JPG
    52 КБ · Просмотры: 242
Заготовки для рессор короткие это наверное мои?Да Сергей?
Да,Владимир-это твои.Сегодня поставил рекорд для твоего бомбардировщика по ширине-220мм.Металл на прессе хрустел.Но согнул.Полировать пришлось 6-ю видами шкурки ,до блеска.Было бы жалко сломать такие заготовки.
 

Вложения

  • DSCN0600_001.JPG
    DSCN0600_001.JPG
    46,4 КБ · Просмотры: 240
Назад
Вверх