Самолет Kitfox

С начала их производства в 1984 году не было ни одного проишествия, связанного с разрушением конструкции самолета.
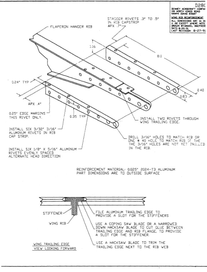
Кронштейны флаперонов, читать здесь:http://www.kitfoxaircraft.com/support/service_bulletins/sb9.htm
Про все косяки здесь:http://www.kitfoxaircraft.com/support/service_bulletins/#top


Усиление кронштейна.
 

Вложения

  • sb9_ht7.jpg
    sb9_ht7.jpg
    74,2 КБ · Просмотры: 487
Да сложно как то все у вас.Лучший вариант-подьехать и посмотреть самолет.
По вопросам-не очень понятно,вы строит его собираетесь или летать ? Ну частично такие дела:
Самолеты эти с различными названиями и модификациями (есть даже пилотажник 🙂 ) выпускаются уже лет 25.Двигатели я лично видел на них Р-582,Р-912,Субару ЕА-81,Континентал А-65 (75),Фольксваген от Грейт Плейнс.
Конструкция-сварная ферма,тонкостенные трубы.Тормоза-раздельные механика (но есть и гидравлика,зависит от модели).Складывание крыльев-отключаются тяги элеронов,снимается задний верхний обтекатель,вынимается болт из переднего стыкового узла,крыло с подкосом уходит назад.
По срокам службы материалов это шутка да ?
Крыло-лонжероны дюралевые трубы,нервюры-фанера.В общем я уже все это писал.
У меня есть книжка и описание по сборке КИТа самолета.Оно вам надо ?
Пишу потому что мне самолет очень симпатичен,летать на нем приходилось и собирать помогал из набора и ремонтировать приходилось.Проблемные места-навеска элеронов к крылу,подгнивают со временм,лучше сразу переделать.

здравствуйте! в общем-то обращаюсь ко всем знатокам. цитата приведена так как содержит информацию по устанавливаемы на китфоксы двигателям.
на сайте производителя значится круизная скорость Kitfox Classic IV 110 миль/час, максимальная 117 миль/час, что составляет 177 и 188 км/ч соответственно. при этом двигатели на китфоксах по мощности сопоставимы с субариками, которые народ ставит на Piper Cub. однако у piper'a скорости, на сколько я могу судить по отчетам на форуме, несколько другие - 130 - 150 км/ч. я что-то не понимаю, или китфокс просто в силу аэродинамических характеристик быстрее получается?
 
С Пейперами не все просто. Когда на них ставят Субару,особо не заморачиваются ни с аэродинамикой,ни с перетяжелением.Мол,компенсируется мощностью мотора. Самый грамотный Пейпер,построенный без перетяжеления и с хорошей аэродинамикой Сергея Мазного (на форуме ветка есть).Так он по характеристикам Китфоксу не уступает.
Китфокс же изначально самолет с очень высокой культурой веса.Вот основные причины.
П.С. С книжкой по сборке у меня вышла неприятность.При переезде куда-то продевал 🙂 не могу найти.Знал бы что такой интерес будет, держал бы на видном месте.Очень жаль...Но может еще найду !
 
спасибо за комментарии!
вообще-то я больше по яхтам специализируюсь, но вот как-то с неделю назад, ползая по инету в поисках альтернативных двигателей на свой "пароход" (всякие оригинальные marine engines стоят совсем небюджетно)  неведомым образом наткнулся на этот форум... с тех пор оторваться не могу. все ж свое, все знакомое - слово "яхта" меняешь на "самолет" и все - диалоги те же 🙂 Поэтому интерес мой - это интерес новичка, но все же книгу увидеть было бы интересно.
Про Piper С.Мазного я ветку уже прочитал 🙂 и представления о скорости Piper'ов почерпнул именно оттуда. Именно Сергей сокрушался по поводу скорости. точно помню - "вот если бы стрелка лежала хотя бы на 180 км/ч, то было бы неплохо, а так"... так что со слов Мазного С., получатеся, что даже его Piper уступает китфоксам...
 
Ага,правильно.Я тоже освежил память-пробежался по ветке про его Пейпер.
Ну ,значит Китфокс в чем то совершеннее чем Пейпер . Профиль у него другой,размеры меньше он легче.
Но вот ,как было замечено, вдвоем в нем тесно.
 
спасибо, конечно, за книгу, но не могли бы Вы выложить ее куда-нибудь в другое место. может это конкретно у меня проблемы, но качать просто замучался - связь постоянно рвется.

ну это смотря кому тесно 🙂 на сайте китфокса есть несколько рекламных видео. в частности, съемка ведется из кабины, в которой находятся два мужика. не скажешь, что мужики сильно огромные, но и не маленькие. так вот по видео не скажешь, что они особо стеснены...

а самолетик и правда симпатичный... еще вопрос. не совсем понял из информации на сайте, а звонить/писать уточнять как-то не с руки... какое оборудование уже включено в стандартный кит? понятно, что всего, что связано с двигателем и авионикой  нет, а вот система управления, "салон" и т.п.?
 
По поводу что не особо стеснены- "оптический обман здрения " 🙂
 
гм... вот еще нашел интересное видео http://www.kitfoxaircraft.com/Web%20Videos/Jimmy%20Franklin/Jimmy%20Frankilin.html все СЛА способны на такое? или это какой-то доработанный вариант китфокса?
 
Это пилотажная версия с укороченным крылом.
 
Кому-нибудь известно - что за профиль у Китфокса 4?
 
http://skyforfree.ru/aircraft/zenith-stol-ch-750
56-162 кмч профиль с предкрылками
http://en.wikipedia.org/wiki/Denney_Kitfox
60-178 кмч при более простой конструкции.  аппарат легче и аэродинамичнее. полезная у обеих машин по 250. "стол" на 55 кг тяжелее.  интересно как китфокс обеспечивает посадочную ниже, чем скайренджер при схожей мощности и массе и крейсере 180кмч!  http://skyforfree.ru/aircraft/x-air-ls-hanuman
http://skyforfree.ru/aircraft/skyranger зато у ская полезная нагрузка+30кг.
 
Если сравнивать, правда это трудно, но... за теже деньги предлагают в Америке 2 самолета, сесна 150 65 года, и китфокс, что выгоднее везти в Россию? 2 вопрос, стоимость даставки контейнером из Америки? Может кто сталкивался?
 
Из Европы будет наверняка дешевле. Китфоксы периодически появляютя в ветке “Самолеты из Европы“ в Торговле
 
По моему китфоксов собранных на заводе как LSA (Light Sport Aircraft)  очень мало. Их только недавно начали делать. Остальные - это те кто их в гаражах собирал из китов. Потоэтому с вероятностью 99% вы сравниваете экспериментальный самолет с фабричной цессной. Я думаю цессна покрепче, особенно если хранилась нормально.
Кроме того половина стоимости - это мотор. Какой мотор на китфоксе? Я видел несколько с О-200. Ну тогда может можно сравнивать еще как то. На родных китфоксах фанерные нервюры. Стремная вещь на старом самолете. У нас в Техасе они сгнивают на раз.
По поводу доставки - по моему одинаково должно стоить.
 
Если сравнивать, правда это трудно, но... за теже деньги предлагают в Америке 2 самолета, сесна 150 65 года, и китфокс, что выгоднее везти в Россию? 2 вопрос, стоимость даставки контейнером из Америки? Может кто сталкивался?

не ленитесь шерстить форум
http://www.reaa.ru/cgi-bin/yabbA/YaBB.pl?num=1332464670
 
Вы наверное про Еврофоксы говорите. 

Китфоксов там в разы больше продается.

Какой мотор на китфоксе? Я видел несколько с О-200.

Все, начиная с 582-го ротакса и выше. У мну стоит 912й UL и есть мнение, что для наших условий это оптимально :IMHO
 
ну вот я и говорю - как можно сравнивать самолет с 582 ротаксом и сессну с лайком. Поэтому чтобы что то сравнивать - надо знать все детали. В принципе я слышал только хорошее об этом самолете и даже хотел купить его одно время. Но заказы на фабрике были на 2 года вперед, а самопал покупать не хотелось. Вообще каждый раз когда покупаешь что то самодельное надо ооочеень хорошо смотреть. Поэтому из 2 предложенных вариантов я бы сессну взял.
 
Назад
Вверх