• Вышел новый выпуск программы ФлайтТВ, посвященный современным российским ЮПШ (юношеским планерным школам).
    Видео на Youtube. Ссылки на другие платформы и обсуждение в теме на форуме.

Аэропракт А-22

Мы делаем облет серийных самолетов A-22LS на соответствие стандарта ASTM F2245. Такие результаты облетов удовлетворяют австралийские и южно-африканские авиационные власти.
 

Вложения

  • Flight_Test_Record_LS_S_N_221_scanned.jpeg
    Flight_Test_Record_LS_S_N_221_scanned.jpeg
    67,4 КБ · Просмотры: 151
Юрий Владимирович, там на видео про ЧПУ показывали станок для лазерной резки, это ваш? Могу предположить, что им вы режете детали противопожарной перегородки.

Токарный обрабатывающий центр тоже Haas?
 
Юрий Владимирович, благодарю за ответ! Это как карточка облета. 🙂
 
Кирилл!
Это не наш лазер. Это у подрядчиков.
Токарно-фрезерный тоже Haas. Отличные станки-просто работают и все. 🙂

Многим владельцам наших самолетов будет интересны испытания образцов ткани с верхней поверхности крыла самолетов разного возраста, в прикрепленном файле.
 

Вложения

Многим владельцам наших самолетов будет интересны испытания образцов ткани с верхней поверхности крыла самолетов разного возраста
Спасибо! Очень интересно, и не только владельцам. Одно дело информация от производителей или продавцов ткани и другое дело от эксплуатантов.
 
Здесь испытание верхней обшивки крыла.
 

Вложения

  • Isp_verhn_obsh_kryla_2.jpg
    Isp_verhn_obsh_kryla_2.jpg
    72,7 КБ · Просмотры: 156
  • Isp_verhn_obsh_kryla_3.jpg
    Isp_verhn_obsh_kryla_3.jpg
    60,3 КБ · Просмотры: 162
  • Isp_verhn_obsh_kryla_1.jpg
    Isp_verhn_obsh_kryla_1.jpg
    53,6 КБ · Просмотры: 156
.
 

Вложения

  • Isp_verhn_obsh_kryla_4.jpg
    Isp_verhn_obsh_kryla_4.jpg
    62,2 КБ · Просмотры: 137
  • Isp_verhn_obsh_kryla_5.jpg
    Isp_verhn_obsh_kryla_5.jpg
    66 КБ · Просмотры: 145
  • Isp_verhn_obsh_kryla_6.jpg
    Isp_verhn_obsh_kryla_6.jpg
    43,7 КБ · Просмотры: 146
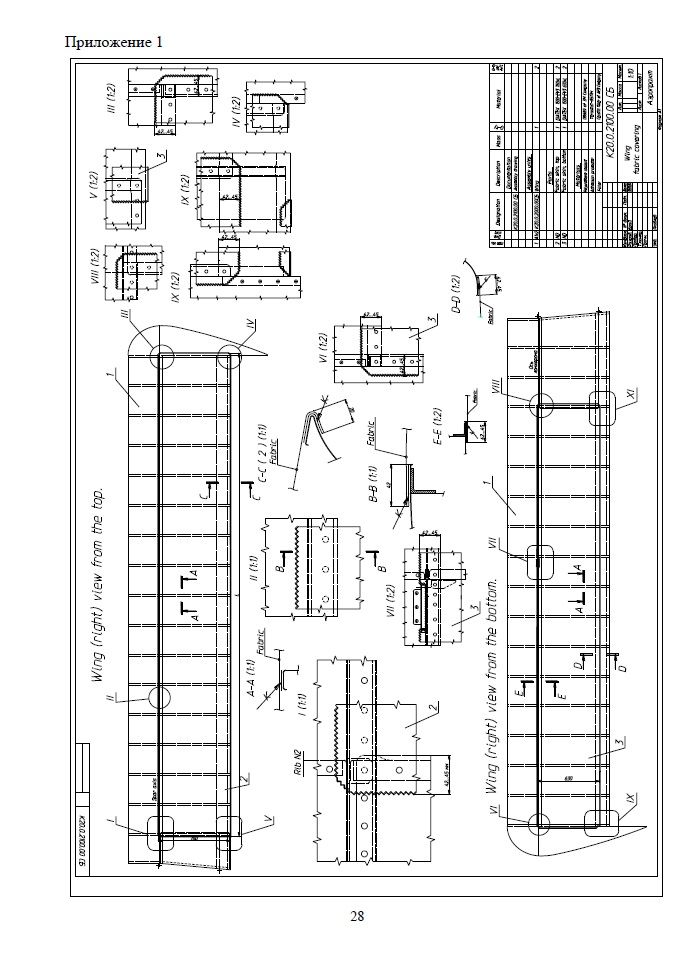
По просьбе омского эксплуатанта наших самолетов, размещаю здесь инструкцию по обтяжке тканью несущих поверхностей наших самолетов. Эта технология отработана и показала свою надежность в течении двух десятков лет. Для пропитки ткани, сейчас мы используем филлер EKOFILL компании Stewart Systems, вместо CECOFILL указанного в инструкции. Филлер можно купить здесь http://www.aircraftspruce.com/pages/cs/fillers/ekoFiller.php
 

Вложения

  • Instr_obtyazh_rus_3.jpg
    Instr_obtyazh_rus_3.jpg
    83 КБ · Просмотры: 147
  • Instr_obtyazh_rus_2.jpg
    Instr_obtyazh_rus_2.jpg
    27,7 КБ · Просмотры: 157
  • Instr_obtyazh_rus_1.jpg
    Instr_obtyazh_rus_1.jpg
    118,3 КБ · Просмотры: 141
.
 

Вложения

  • Instr_obtyazh_rus_4.jpg
    Instr_obtyazh_rus_4.jpg
    71,5 КБ · Просмотры: 140
  • Instr_obtyazh_rus_5.jpg
    Instr_obtyazh_rus_5.jpg
    45 КБ · Просмотры: 144
  • Instr_obtyazh_rus_6.jpg
    Instr_obtyazh_rus_6.jpg
    72,2 КБ · Просмотры: 134
.
 

Вложения

  • Instr_obtyazh_rus_7.jpg
    Instr_obtyazh_rus_7.jpg
    64,9 КБ · Просмотры: 135
  • Instr_obtyazh_rus_8.jpg
    Instr_obtyazh_rus_8.jpg
    56,2 КБ · Просмотры: 141
  • Instr_obtyazh_rus_9.jpg
    Instr_obtyazh_rus_9.jpg
    82,7 КБ · Просмотры: 123
.
 

Вложения

  • Instr_obtyazh_rus_12.jpg
    Instr_obtyazh_rus_12.jpg
    59,9 КБ · Просмотры: 131
  • Instr_obtyazh_rus_11.jpg
    Instr_obtyazh_rus_11.jpg
    65,7 КБ · Просмотры: 129
  • Instr_obtyazh_rus_10.jpg
    Instr_obtyazh_rus_10.jpg
    68 КБ · Просмотры: 159
.
 

Вложения

  • Instr_obtyazh_rus_13.jpg
    Instr_obtyazh_rus_13.jpg
    55,5 КБ · Просмотры: 139
  • Instr_obtyazh_rus_14.jpg
    Instr_obtyazh_rus_14.jpg
    60,5 КБ · Просмотры: 129
  • Instr_obtyazh_rus_15.jpg
    Instr_obtyazh_rus_15.jpg
    79,7 КБ · Просмотры: 141
.
 

Вложения

  • Instr_obtyazh_rus_16.jpg
    Instr_obtyazh_rus_16.jpg
    59,2 КБ · Просмотры: 134
  • Instr_obtyazh_rus_17.jpg
    Instr_obtyazh_rus_17.jpg
    62,2 КБ · Просмотры: 129
  • Instr_obtyazh_rus_18.jpg
    Instr_obtyazh_rus_18.jpg
    60,5 КБ · Просмотры: 135
.
 

Вложения

  • Instr_obtyazh_rus_20.jpg
    Instr_obtyazh_rus_20.jpg
    62,6 КБ · Просмотры: 124
  • Instr_obtyazh_rus_21.jpg
    Instr_obtyazh_rus_21.jpg
    69,6 КБ · Просмотры: 121
  • Instr_obtyazh_rus_19.jpg
    Instr_obtyazh_rus_19.jpg
    51,2 КБ · Просмотры: 126
.
 

Вложения

  • Instr_obtyazh_rus_22.jpg
    Instr_obtyazh_rus_22.jpg
    76,9 КБ · Просмотры: 125
  • Instr_obtyazh_rus_23.jpg
    Instr_obtyazh_rus_23.jpg
    51,8 КБ · Просмотры: 128
  • Instr_obtyazh_rus_24.jpg
    Instr_obtyazh_rus_24.jpg
    53,6 КБ · Просмотры: 124
.
 

Вложения

  • Instr_obtyazh_rus_25.jpg
    Instr_obtyazh_rus_25.jpg
    62,5 КБ · Просмотры: 122
  • Instr_obtyazh_rus_26.jpg
    Instr_obtyazh_rus_26.jpg
    54,4 КБ · Просмотры: 126
  • Instr_obtyazh_rus_27.jpg
    Instr_obtyazh_rus_27.jpg
    66 КБ · Просмотры: 124
Спасибо большое! Очень ценная информация для самодельщиков! Не каждый производитель найдет время и, главное, желание делиться своими производственными технологиями и результатами их применения.
 
Назад
Вверх