Двигатель Rotax-912

Более вероятно течет сальник штока. Масло выбивает через дренажное отверстие и сдувает на фланец.
 
Более вероятно течет сальник штока. Масло выбивает через дренажное отверстие и сдувает на фланец. 
А как определить сальник или прокладка?Или менять сразу и сальник и прокладку.?
 
обезжирить, высушить, натереть мелом. Где потемнеет мел в первую очередь там и течет.
сальник не меняется, идет в сборе с насосом.
 
Подтверждаю, при установленном термостате, включение в работу большого круга (проток через радиатор) вызывает скачки давления в маслонасосе. Это заметно на любом приборе - указателе давления масла.

А при снятом термостате проверяли?


Возможно, что это сочтут некорректным, но в однотипных мотоустановках (более 5-ти штук) без термостата скачков давления не наблюдалось (клапан шариковый). Стали ставить термостат на аналогичные мотоустановки и сразу обратили внимание на скачки давления. Рукой чувствуется когда в термостате закрывается клапан и масло идёт по большому кругу. Специально наблюдал за этим. Температура окружающей среды (и масла в баке) 18 -22 град.

Так, чтобы на одной мотоустановке проверить работу маслонасоса без термостата и с ним не практиковал.

Я лично, не сторонник установки термостатов на масло.
 
не сторонник установки термостатов на масло. 
Вы не любите термостаты ,мистер Иванов?!
Вы просто не умеете их готовить ...к полётам !
Начинали без термостатов ,на земле +15 ,на высоте около нуля или ниже ...на снижении температура   масла падала менее 50 градусов. После установки термостатов менее 70 не падает и это есть гут!
И почти в продолжение  температурной темы ,может кому интересно будет ,может кто то уже замерял или хочет замерить температуру цилиндров . После установки термопарки от простого китайского термометра между рёбрами сначала задних потом и передних цилиндров получили значение примерно 120 градусов , в то время как штатный дайноновский показатель был 100-105 ! Хотелось бы комментарий ... :-/
 
Возможно, что это сочтут некорректным, но в однотипных мотоустановках (более 5-ти штук) без термостата скачков давления не наблюдалось (клапан шариковый). Стали ставить термостат на аналогичные мотоустановки и сразу обратили внимание на скачки давления. Рукой чувствуется когда в термостате закрывается клапан и масло идёт по большому кругу. Специально наблюдал за этим. Температура окружающей среды (и масла в баке) 18 -22 град
Можно уточнить какой или какие термостаты были установлены. Два года как летаю с термостатом и зимой и летом . Ни каких скачков не наблюдаю. Установлен флайдат. По распечатке все ровно.
 
Возможно, что это сочтут некорректным, но в однотипных мотоустановках (более 5-ти штук) без термостата скачков давления не наблюдалось (клапан шариковый). Стали ставить термостат на аналогичные мотоустановки и сразу обратили внимание на скачки давления. Рукой чувствуется когда в термостате закрывается клапан и масло идёт по большому кругу. Специально наблюдал за этим. Температура окружающей среды (и масла в баке) 18 -22 град

Можно уточнить какой или какие термостаты были установлены. Два года как летаю с термостатом и зимой и летом . Ни каких скачков не наблюдаю. Установлен флайдат. По распечатке все ровно.

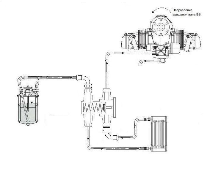
Уточняю, термостат вот такой ( на картинке ) и схема подключения. Вполне возможно, что причина скачков давления масла при закрытии клапана термостата зависит от его конструкции и от схемы маслосистемы.

Если у Вас (и не только у Вас) термостат (плюс схема его установки) не даёт скачков давления, то на мой взгляд, он всё-равно не устраняет проблем, связанных с водяным конденсатом из-за недогрева масла. Это решается только управлением жалюзями на радиаторе.
Сам термостат лишь несколько (незначительно) ускоряет прогрев масла до рабочей температуры - 60 град.
 

Вложения

  • 0_003_001.jpg
    0_003_001.jpg
    83 КБ · Просмотры: 125
  • Shema_termostata.jpg
    Shema_termostata.jpg
    35,3 КБ · Просмотры: 132
Начинали без термостатов ,на земле +15 ,на высоте около нуля или ниже ...на снижении [highlight]температура   масла падала менее 50 градусов. [/highlight]После установки термостатов менее 70 не падает и это есть гут!
 
Уточняю, термостат вот такой ( на картинке ) и схема подключения. Вполне возможно, что причина скачков давления масла при закрытии клапана термостата зависит от его конструкции и от схемы маслосистемы.
Полностью с вами согласен. То что у вас на картинке для наших целей ну ни как не подходит. Плавность его работы никакая. Достаточно посчитать площадь проходного сечения при ходе тензометрического элемента в один мм. и станет все ясно.
И еще несколько проколов, на мой взгляд, у этого и у других подобных. Это 1.температура открытия,2. усилие которое развивает пружина, 3 внутренняя конструкция. 
Для примера. Чтобы установить эти термостаты нужно 1,5-2,0м шлангов, в зависимости от расположения. И это не есть хорошо для Ротакс.   
 

Вложения

  • Masljanyj_temostat_2.JPG
    Masljanyj_temostat_2.JPG
    63 КБ · Просмотры: 115
  • Masljanyj_termostat.JPG
    Masljanyj_termostat.JPG
    50,1 КБ · Просмотры: 117
Иначе можно. Вот польский вариант.http://www.faston.pl/akcesoria/akcesoria_czterosuwowe.html Но это термодроссель и для его корректной работы нужно сделать гидравлический расчет системы. Т.е. подобрать и согласовать все диаметры и длины. Народ жалуется на него что работает, но плохо. Вреда от него нет, кроме цены 450 евро в Москве, но и польза сомнительная. У меня стоит вот это.
 

Вложения

  • M_t_2szh.JPG
    M_t_2szh.JPG
    31,9 КБ · Просмотры: 118
  • M_t_4szh.JPG
    M_t_4szh.JPG
    19,5 КБ · Просмотры: 114
Пришла зима, непонятки в работе СУ 912 ULS.
Температура -15
Заводится не плохо, после пары минут работы начинает сильно трясти двигатель в диапазоне оборотов 2-3 тыс, притом на 3000 тряска такая, что аш страшно становится, после 3000 мотор работает более менее ровно. С подогревом карбюратора ситуация лучше(подогрев входящего воздуха). На второй круг не уйти, пока снижаюсь, видимо что-то охлаждается и при добавлении РУДа опять жуткая тряска. Сажусь, на 2,5 тыс работает двигатель пару минут, потом тряска пропадает, взлетаю заного. Температура ОЖ и масла в пределах нормы, чуть больше 80 град, летом и осенью также было. Снял крышку карба, вытащил уголку, стопорное кольцо поднял на одно деление(переместил вверх в сторону тупой части иглы). Сейчас кольцо стоит на предпоследнем делении. В РТЭ прочитал еще зазоры свечей выставить 0.7 и зазор в магнетто 0,3.
Крайний раз зарулил на стоянку, "вытащил" РУД, обороты 1,8тыс, выключаю зажигание и бам хлопок с выхлопа. Осмотрел, все ок, завел, завелся с полпинка, проблем нет.
Вообщем явно что-то не так со смесью.
Какие рекомендации еще будут?
 
Андрей  привет.  Попробуй  вынуть  после  таких  газовок  на  морозе  главный  жиклер,  там  наверняка  замерзло  всё.    Теперь  продуй  и  вставь  обратно, в  топливо  добавь  опреснитель  из  авто  магазина,  на  40  л  один  флакон  и  снова  всё  собрав  прогазуй  мотор.  Я  уверен  ,  что  все  будет  ОК.  Некачественное  топливо  или  конденсат  в  баках  при  длительной  стоянке.  На  зиму  старайся  баки  держать  полными  и  обязательно  лей  опреснитель.  Удачи.
 
Добрый день. А чем там забито то? Водой чтоли?
Опреснитель - это средство типа удалитель влаги из топлива, а имеено спирт, в котором вода растворяется?
 
Похоже обгонная муфта стартера не хочет зацепляться, подскажите есть ли ремонт, сам стартер крутиться.
двигатель 912 100сил. старенький 2004..5г
 
Кто знает, какие свечи NGK пойдут на 912ULS?
м.б. эти NGK DCPR8E?
Внимательно со свечами NGK DCPR8E. У меня перед глазаи две такие свечи, но на одной из них контакт ВВ провода цельный толстый, т.е. бабышка литая не откручивается, такие свечи не подойдут, хоть и марка таже буква в букву.
 
Назад
Вверх