Аэроглиссер что-ли?

и тогда ваши градусы тангажа будут бессильны
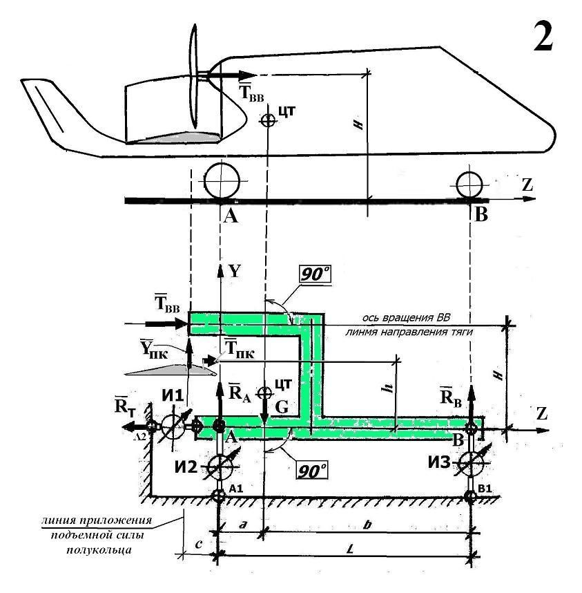
Не тангаж, а угол УСТАНОВКИ  ВМУ (при тангаже 0 -- ВМУ, глядя вперед по движению немного смотрит вверх, вектор тяги под 15 градусов). И задачи здесь - не исследовательские, а -инженерные (конструкторские).
 
Не тангаж, а угол УСТАНОВКИВМУ (при тангаже 0 -- ВМУ, глядя вперед по движению немного смотрит вверх,
Кто вам сказал что вверх и с чего вы это взяли ? Аэроглиссер имеет положительный тангаж при движении по воде , поэтому для горизонтальности вектора тяги ВМУ наклоняют вперёд, чтобы убить двух зайцев ! Первое - горизонтальность вектора при движении на воде . Второе - вектор проходит мах близко  к Ц.Т. А теперь озвучьте пож. кто "умник" и почему и  о чём пари  ?
 
вектор проходит мах близко  к Ц.Т.
Во-первых, умник - это Бывалый. А вопросы к нему, собственно, и есть предмет пари.
Во-вторых, у Вас ВМУ - фактически "система Кастера", а, если построить вектора, можно понять, что равнодействующая от Вашей "системы" есть вектор, который вовсе не приблизился к ЦТ (иначе разложить вектор от винта и понять, что ПС от Кастера примерно равна по длине вертикальной составляющей тяги винта под 15 гр., но находится ЗА ВИНТОМ, т.е. еще ДАЛЬШЕ).
А первый заяц (горизонтальность вектора при движении по воде) - это вообще НЕ ЦЕЛЬ, что в этом - хорошего/положительного? Скорее - даже минус, т.к. дифферент - только больше.
 
Не совсем Кастер, нижнюю горизонтальную полку кольцевого крыла винт фактически не протягивает, там находится моторный отсек, поэтому система не так эффективна как у Кастера. Плоскость винта наклонена вперёд на 5 градусов , о чём я и пишу про приближение вектора тяги к Ц.Т. Горизонтальность вектора при движении по воде обеспечивает использовать 100% тяги на преодоление сопротивления движению без всяких составляющих , а нормальные слабокилеватые обводы днища не позволяют расти дифференту на нос от тяги и аэродинамической разгрузки . Гидродинамическая подъёмная сила днища практически сразу же после начала движения, ещё  до 20км/час  выводит аппарат на глиссирование, при следующем спуске на воду обязательно сделаю и покажу видео..Не понял как может находиться ПС от Кастера за винтом ? По моему представлению сила реакции от ВП сверху  приложена на винт..
 
умник - это Бывалый. А вопросы к нему, собственно, и есть предмет пари.
О мудрейший из наиумнейших ярлыконаклеивателей!
Огласите весь список вопросов к мене, "умнику", которые являются предметом пари.
Пожалуйста.

@ казак
Сообщите марку платформенных автовесов, использовавшихся в эксперименте.
 
Огласите весь список вопросов
1. В какую сторону?
2. Почему?
3. Насколько?
изменились бы показания ПС, если эксперимент был бы "чистым"?

нижнюю горизонтальную полку кольцевого крыла винт фактически не протягивает
Тогда вообще - зачем?
"...
Козе - баян, попу - гармонь, икона - папуасу
..."
Исключительно, ради исследования?
 
1. В какую сторону?
2. Почему?
3. Насколько?
изменились бы показания ПС, если эксперимент был бы "чистым"?

1. Не изменится.
2. Потому, что по тому.
3. Это покажет нормальный эксперимент. (Уважаемый @Казак насупает третий раз на те же грабли - см. ветку "Экраноплан", посты №5842, 5852, 5910 и сопутствующее обсуждение)

Эксперимент нужно готовить методически правильно, а измерительное оборудование использовать по назначению, согласно инструкции.
 
@ PFELIX

По вашему только горизонтальная часть гнутого профиля способно создавать подъёмную силу (разгрузку) ? Я так не считаю , что и доказывает проведённый эксперимент..И на грабли не наступаю и знать мне маркировку и инструкцию электронных весов мне ни к чему, взвешивание проводил специалист, который не один год этим занимается и зарабатывает себе на жизнь, это видно из  ролика.. Что касается схемы - никакого постороннего воздействия на аппарат не производилось, кроме того, что он сам на себя винтом и системой производил.. Феликс , сопоставьте цифры, при горизонтальной составляющей тяги в 180 кгс существует ещё и вертикальная 50 кгс, а это 36 % от 180 ! Вопрос к Бывалому - откуда берётся энергия для совершения дополнительной работы по созданию вертикальной составляющей в 50 кгс ?.. Вот гонка той же самой ВМУ 2 года ранее на Вжике .. Тогда нам показала статику без кольца 160 кгс, с полукольцом 170кгс . Подкорректировали обороты и местоположение винта и получили 180 кгс..    http://www.reaa.ru/cgi-bin/yabb/YaBB.pl?num=1125250236/4950
 
И на грабли не наступаю и знать мне маркировку и инструкцию электронных весов мне ни к чему
И зря...
Платформенные весы (ПАВ) прежназначены для замера ВЕСА какого-либо тела, т.е. силы, создаваемой им в поле тяготения Земли, направленной к центру её масс.
Основные типы ПАВ предназначены для взвешиваний в статических условиях, т.е. взаешиваемое тело должно быть неподвижно относительно платформы, не вибрировать, не создавать (не воспринимать) сил, имеющих горизонтальную составляющую (допускается на уровне долей процента). Это для точных (товарных) измерений. Такие ПАВ располагаются в закрытых помещениях или под специальными ветровыми укрытиями. Иначе точность замера становится много ниже и такие ПАВы используют только для предварительных (оценочных, технологических) взвешиваний.
Судя по Вашим фото, замеры производились на одноплатформенном ПАВе. Для Вашего эксперимента требуется, как минимум, двухплатформенный ПАВ с возможностью замера усилия по каждой платформе (опоре аппарата) отдельно. При этом должен быить третий динамометр, измеряющий осевое (горизонтальное) усилие от тяги ВВ и полукольца Каспера, колеса тележки (опор) должны быть расторможены, чтобы не создавать горизонтального усилия от тяги на платформе. Даже при этом будет дополнительная погрешность замера от крутящего момента и боковой ветровой нагрузки, но этим можно пренебречь "в гаражных условиях".
Можно обойтись и одноплатформенными ПАВ, но тогда нужна приспособа, позволяющая перемещать одну из опор с платформы за её пределы (имерение выполняется в несколько этапов)
Тогла Вы сможете вычленить ПС и ОС полукольца Каспера из замеров усилий и даже определить примерно  осевую координату точки её приложения. Что позволит определить величину "пикирующего" момента от полукольца Каспера в Вашем аппарате.
 

Вложения

  • Tjaga+CM-_Pk_2.JPG
    Tjaga+CM-_Pk_2.JPG
    83,5 КБ · Просмотры: 197
В точном измерении величины аэродинамической разгрузки  с учётом инструментальной погрешности необходимости нет . Силу тяги на прицепе , с его колёсами и сопротивлением качению измерить точно тоже невозможно , обычно такие замеры тяги на стопе делают на воде у бережка, поэтому на весах динамометр точно не нужен.. В моём случае ценность эксперимента заключается в инструментальной фиксации наличия аэродинамической разгрузки с довольно приличной точностью ,от устройства Кастера , в которой многие на форуме сомневались.. По моему разумению такие замеры проводились впервые в России, и кто ни-будь и сейчас скажет, что в них особой нужды нет .. Теперь, изменяя физические параметры самого устройства, можно будет экспериментировать по той же схеме и найти более эффективную конструкцию..Я считаю использование такого устройства на глиссерах, и особенно на экранолётах просто необходимым !
Вопрос к Бывалому - откуда берётся энергия для совершения дополнительной работы по созданию вертикальной составляющей в 50 кгс ?.. Вот гонка той же самой ВМУ 2 года ранее на Вжике .. Тогда нам показала статику без кольца 160 кгс, с полукольцом 170кгс . Подкорректировали обороты и местоположение винта и получили 180 кгс..http://www.reaa.ru/cgi-bin/yabb/YaBB.pl?num=1125250236/4950 
 
В моём случае ценность эксперимента заключается в инструментальной фиксации наличия аэродинамической разгрузки с довольно приличной точностью ,от устройства Кастера , в которой многие на форуме сомневались.. 
Мало кто сомневался в наличии такого эффекта, и полученная нынче величина похоже не вызывает возражений ни у кого,в отличие от первых замеров! 😉
Однако я думаю, целесообразнее добавить недостающее полукольцо и поиметь ещё дополнительную тягу. Толку больше будет. А эффект Кастера использовать там, где он действительно нужен. 🙂
 
Однако я думаю, целесообразнее добавить недостающее полукольцо и поиметь ещё дополнительную тягу. Толку больше будет
Прибавить 20 кг тяги на стопе , и получить при движении  в динамике дополнительные 20 кгс лобового сопротивления вместо прибавки,  вы считаете полезней , чем облегчение конструкции на всех режимах хотя бы и на 50кг ? Тогда грош цена всем прочностным расчётам,  делающимся в основном, чтобы выгадать эти 50кг на конструкции ..Лепи на глаз и  не ошибёшься ! Алексей посмотри по ссылке выше  мои посты с фото, две газовки с полукольцом и без  с интервалом в 20 минут на одном и том же месте и становится многое понятно..
 
@ казак
Давно уж известно,что при скоростях движения аэроглиссера, сопротивление кольца не превышает его прибавки в тяге. Могу это доказать используя данные экспериментов ЦАГИ, но нужно ли? Эти 20 кг тяги легко тянут 50 кг по снегу, не говоря уж о воде.
 
Вопрос к Бывалому - откуда берётся энергия для совершения дополнительной работы по созданию вертикальной составляющей в 50 кгс ?..
Вопрос поставлен несколько не правильно или с подкавыркой... Вся энергия на создание тяги и АДС от полукольца Каспера первоначально берется от двигателя, установленного в ВМУ Вашего глиссера. 
Дополнительные пояснения содержатся во вложении к посту №5946 (л.199) ветки "Экраноплан". Сей пост остался незамесенным в "жаркий и насыщенный летний период".
Нужно подробнее - дополню.

ценность эксперимента заключается в инструментальной фиксации наличия аэродинамической разгрузки с довольно приличной точностью ,от устройства Кастера
На порядок Вы не ощиблись, но в разы - вполне...
Только помните, что Ваш замер выполнен в статике. При движении АДС полукольца будет уменьшаться, как и перемещаться точка её приложения. "Пикирующий" момент от АДС полукольца булет вреден при преодолении горба сопротивления при выходе на глиссирующий режим.
 
На порядок Вы не ощиблись, но в разы - вполне... 
Чем докажете про разы ?    
ПС крыла Кастера составляет максимум 75% от ПС обычного крыла (в равных параметрах потока воздуха).
При этом вес конструкции крыла Кастера в 1,5 раза превышает вес обычного крыла.
Давайте по порядку , если раскрутить  винт за задней кромкой  прямоугольного крыла с хордой 550мм и размахом2.75м , сколько подъёмной силы вы намерены получить при V=0 ? Второе, с чего вы взяли что конструкция прямого крыла будет весить меньше ? Наоборот , кольцевое крыло не требует мощного лонжерона, его концы замыкаются  распорками из трубы Д 16Т  ,которая значительно легче несущего лонжерона прямого крыла.. Третье , вы ошибаетесь с принципом создания подъёмной силы полукольцевого крыла, которое в своём полукольцевом объёме при протягивании ВП через профиль способно создавать больший объём разрежения , чем прямое крыло при движении.. Прямое крыло вообще ничего не создаст при V=0 !  "Пикирующий" момент от АДС полукольца практически такой же как у простого аэроглиссера без разгрузки и выход на глиссирование происходит легко..
 
Вопрос поставлен несколько не правильно или с подкавыркой... Вся энергия на создание тяги и АДС от полукольца Каспера первоначально берется от двигателя, установленного в ВМУ Вашего глиссера.
Никакой подковырки.. Эффект от ВМУ  Кастера сравним с экранным эффектом ,там тоже  по сути при тех же затратах двигателя , у экрана ПС вдвое больше ! Только не каждый понимает почему ..
 
Назад
Вверх