Обсуждение постройки минимакса-хаймакса

Доброго времени суток форумчане авиаторы, вот такой самолётик родился у нас в Бишкеке делюсь радостью, столкнулись с проблемой нет винта для 532 ротакса, может кто что посоветует из загашников новый Самарский потянуть не можем пока что, если смотреть на двигатель спереди крутит по часовой стрелке, левого вращения видимо нужен винт

20230611_161737.jpg
 
Последнее редактирование:
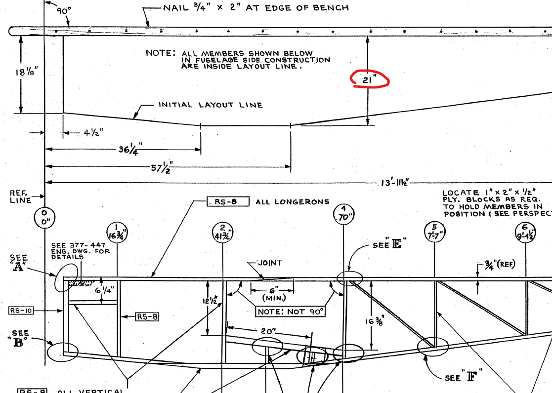
Коллеги, добрый день! Возник вопрос по чертежам, как буд-то какая-то ошибка, но нигде ранее, ни у нас, ни в зарубежной печати упоминания об этом не встречал. Нанес на бумагу шаблон боковых панелей фюзеляжа и стал проверять размеры и обнаружил, что в выделенном месте на рис.1 не соответствует размерам которые обозначены на рисунке 2. Проблема в том, что "шпангоут" уже склеил и прикладывая его никак он туда не встает. Так же не совпадает размер шпангоута (рис.3) выполненного по чертежу рис.4.

Все размеры проверил, но не пойму где ошибка у меня или в чертежах?

1.png


2.png


3.png


4.png
 
Ну вот сам задал вопрос, сам и отвечаю. Пробежался по фоткам и видимо размеры с рис.5 в чертеже указаны не верно. На рис.6 выделил размеры x и y, на фото других строителей y/x примерно 3, тогда как на чертеже 21/(21-12/5) = 2.47. Получается укосину нужно параллельно спустить ниже, коллеги?

И странно, что никто об этом не упоминал.

5.png


6.png
 
Раньше был такой форум - Авиамастер, на котором достаточно обьемно и подробно обсуждался это самолет и его постройка. Там была информация по неточностям в чертежах, как я могу помнить - этих неточностей и ошибок там несколько.
 
Показанные вами картинки не содержат размеров позволяющих построить боковую панель фюзеляжа.
Откуда вы взяли размер 21?
Размер 19.5 вполне согласуется с 16и3/8.
Вы обратили внимание на указание того что углы там не равны 90 градусам?
Попробуйте ещё раз прорисовать.
 
Rafis, спасибо что откликнулись!

На первом чертеже указан габарит 21, приложил рис. 7.

Действительно, углы там не 90градусов и на своем чертеже это учтено, но отклонение от него 2 градуса, поэтому там не большая разница между катетом и гипотенузой, тем более, если брать отношения, то синус сокращается.

Касательно "19.5 и 16-3/8" у меня разница между склеенным шпангоутом и чертежом - 5 мм. И это еще одна вещь, которая меня беспокоит. Чтобы ее нивелировать нужно либо уменьшить высоту боковой панели. т.е. не 21, либо каким-то образом увеличить угол подъема задней части нижнего лонжерона

7.png
 
Раньше был такой форум - Авиамастер, на котором достаточно обьемно и подробно обсуждался это самолет и его постройка. Там была информация по неточностям в чертежах, как я могу помнить - этих неточностей и ошибок там несколько.
Спасибо! Видимо когда я его читал, не обратил внимание, или обратил, но забыл.
Значит дело не во мне, буду исправлять по месту.
На сколько я понял, самое важное, это чтобы между 2м и 4м шпангоутом был такое же расстояние как между лонжеронами крыла.
 
Коллеги, подскажите пожалуйста по шасси. В чертежах указано, что ось должна быть из трубы 4130 1"х0.095", но у нас похожую из 30ХМА 25х2,5 найти не получается, возможно ли заменить ее на 30ХМА 32х1,2 или даже 32х1,5 ?
 
если память не изменяет 4130 это сталь 20.Вы посмотрите в сети аналоги.
Отнюдь: придумывать хромансиль пришлось именно из-за невозможности производить аналог 4130 по причине дефицита молибдена.
По существу вопроса: 32 х 1.5 вполне подойдет - а в случае отсутствия 30ХМА. 30ХГСА подойдет лучше всего.
 
Удалось выбраться на заброшенный аэродром. С удивлением узнал, что его ширина меньше, чем ширина ледового поля. Наехал на кочку, сломал заднюю стойку. на ремонт ушло 3 дня. Пришлось потренироваться без консолей. Когда удалось набрать скорость отрыва без заезда в кусты, попробовал подлетнуть.
На второй попытке при наборе высоты упали обороты двигателя, пошел на вынужденную, удалось примоститься между деревьями. Потери - правая покрышка с камерой, с двигателем надо разбираться.
 
Самый опасный отказ двигателя - в наборе высоты, пока она ещё небольшая. Очень хорошо иметь на прямой после взлета безопасный участок для вынужденной. Двиг надо отладить. Перед взлетом нужна проверка на полном газу минута - две. Хотя, бывает и после все равно отказ, при росте оборотов и скорости. У меня такое было из за влияния положения впускного патрубка карба относительно потока воздуха. Скорее всего и тут что то со смесью, топливо - воздух. А так, здорово, летает самолёт норм.🙂
 
Удалось выбраться на заброшенный аэродром. С удивлением узнал, что его ширина меньше, чем ширина ледового поля. Наехал на кочку, сломал заднюю стойку. на ремонт ушло 3 дня. Пришлось потренироваться без консолей. Когда удалось набрать скорость отрыва без заезда в кусты, попробовал подлетнуть.
На второй попытке при наборе высоты упали обороты двигателя, пошел на вынужденную, удалось примоститься между деревьями. Потери - правая покрышка с камерой, с двигателем надо разбираться.
Везёт людям ))) Заброшенный эродром найти.
 
В принципе, сельхозполос 400 х 20, навалом - только на одних плиты растащили, другие утилизировали иным способом колхозы- владельцы.
 
Самый опасный отказ двигателя - в наборе высоты, пока она ещё небольшая. Очень хорошо иметь на прямой после взлета безопасный участок для вынужденной. Двиг надо отладить. Перед взлетом нужна проверка на полном газу минута - две. Хотя, бывает и после все равно отказ, при росте оборотов и скорости. У меня такое было из за влияния положения впускного патрубка карба относительно потока воздуха. Скорее всего и тут что то со смесью, топливо - воздух. А так, здорово, летает самолёт норм.🙂
Случай не связан с самолётами, но грабли совершенно идентичные.
Прошлый раз поднимал фургон из руин. Завёл быстро. Обнаружил все засады по мотору в течение трех дней отсилы. Две недели боролся с проблемами по топливной системе. Как у старых дизелистов, подсос воздуха в неизвестном месте/местах. Постоянно останавливался на подъёмах. Авто старое, топливный насос на моторе, бензин должен сосать из далеко расположенного бензобака по длинном трубопроводу - стальная трубка чередующаяся с резиновыми шлангами + стыки на гайках с медными шайбами.
Я конечно победил, но как... путем полной замены трубки, были места с трещинами на изгибах, и установкой электрического бензонасоса непосредственно у бензобака. Сейчас прёт везде. А был бы самолётом, шлепался бы каждый раз после взлёта и короткого набора высоты, при опустошении карбюратора, который при подобном отказе работает как таймер.
Что происходило? При горизонтальном положении вполне рабочий механический топливный насос (такой же как в карбюраторах вальбро) тянет по трубе и бензин, и воздух через негерметичности. Но если пойти в подъем, то мотор поднимается гораздо выше бензобака и топливный насос начинает сосать чистый лёгкий воздух через негерметичности топливопровода оставляя тяжёлый бензин внизу, в бензобаке. При чем все абсолютно исправно и рабочее, пять насосов поменялось, в горизонтали все идеально.
Так ведь это машина была, даже в неудобном месте можно приткнуться с краю дороги. На самолёте, шлепаться по четыре раза на день в течение двух недель вряд-ли кто обладает достаточным везением.

На грузовиках подобная проблема всем водилам известный бич. В авиации возможно её уже не получется обнаружить среди обломков, поскольку засада мелкая, но пакостная, либо совсем глохнет, либо мощность теряет.
 
Последнее редактирование:
Назад
Вверх