леха (magnum)
Aeropract.ru
- Откуда
- Жуковский
Ронять надо с 250мм,
если с 450мм уронить плохо будет.
смысл в том, что бы перегрузка была не больше 2...2,5 едениц.
если с 45см бросать (скорость 3м/с получается), и хотим перегрузку 2,5еденицы, то "тормозной путь должен быть 360мм (это прогиб рессоры такой).
с высоты 250мм если бросать (скорость 2,2м/с), то ход рессоры будет 0,2метра.
с учетом работы колеса прогиб рессоры 150мм.
больше 2,2м/с в землю самолет втыкать не надо.
а дальше всё просто массу умножаем на перегрузку 2,5 и считаем рессору что бы в ней напряжения были не больше 0,7..0,8 от сигмы b.
получаем размеры рессоры.
если прогиб рессоры меньше (жесткая рессора) то самолет при посадке будет испытывать большие нагрузки.
и допустим если ход рессоры будет 100мм, то перегрузка которую будет испытывать фюзеляж будет уже 5 едениц. а если 50мм ход рессоры, то перегрузка 10едениц.
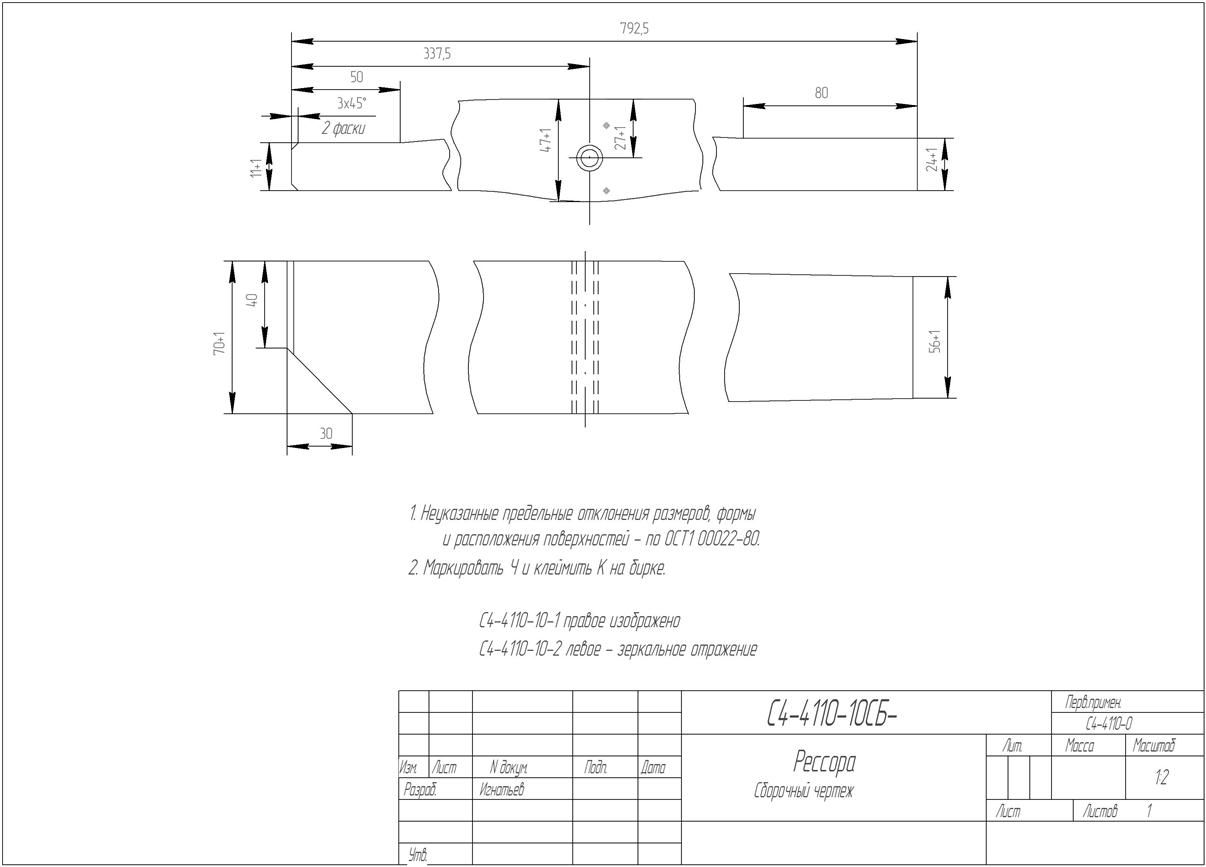
Поэтому жесткие короткие рессоры на птенцах и сигмах-4 ломаются в щепки.
а на цеснах длинные гибкие рессоры живут долго и счастливо.
https://www.youtube.com/watch?v=Kx5YeqTBcDI
если с 450мм уронить плохо будет.
смысл в том, что бы перегрузка была не больше 2...2,5 едениц.
если с 45см бросать (скорость 3м/с получается), и хотим перегрузку 2,5еденицы, то "тормозной путь должен быть 360мм (это прогиб рессоры такой).
с высоты 250мм если бросать (скорость 2,2м/с), то ход рессоры будет 0,2метра.
с учетом работы колеса прогиб рессоры 150мм.
больше 2,2м/с в землю самолет втыкать не надо.
а дальше всё просто массу умножаем на перегрузку 2,5 и считаем рессору что бы в ней напряжения были не больше 0,7..0,8 от сигмы b.
получаем размеры рессоры.
если прогиб рессоры меньше (жесткая рессора) то самолет при посадке будет испытывать большие нагрузки.
и допустим если ход рессоры будет 100мм, то перегрузка которую будет испытывать фюзеляж будет уже 5 едениц. а если 50мм ход рессоры, то перегрузка 10едениц.
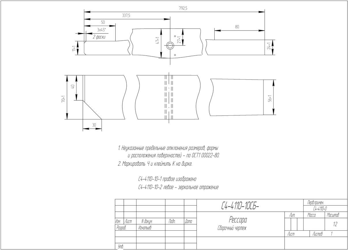
Поэтому жесткие короткие рессоры на птенцах и сигмах-4 ломаются в щепки.
а на цеснах длинные гибкие рессоры живут долго и счастливо.
https://www.youtube.com/watch?v=Kx5YeqTBcDI
