Thread moderators: АНДРЕЙ78
"Вальтера" хорошие движки, но перекрученные по оборотам, особенно "М"- ки. Хотя, да, сейчас другое время и на какую нибудь самоделку типа "пайпера" не поставишь винт Ф2,4м, какой на ПО - 2 стоял с его 1650 об/мин., как то уже громоздко будет. Андрей, следим за твоим творчеством, молодца! Я занимался конструкциями в основном из дерева, посматриваю как из дюраля клепаете. А по движкам вроде "Хонду" хвалят больше, хотя и "субаря" бывает подолгу ходят, как у С. Мазного, например.
 
Я склоняюсь к оппозитным движкам, катался на хонде дельтапланах, вибрация хорошо чувствуется, субарик как электромотор работает.
А по ресурсу плюс-минус 200часов, его поменять пару дней работы.
Минус субарика вес.
 
1000008680.jpg
1000008679.jpg
1000008678.jpg
 
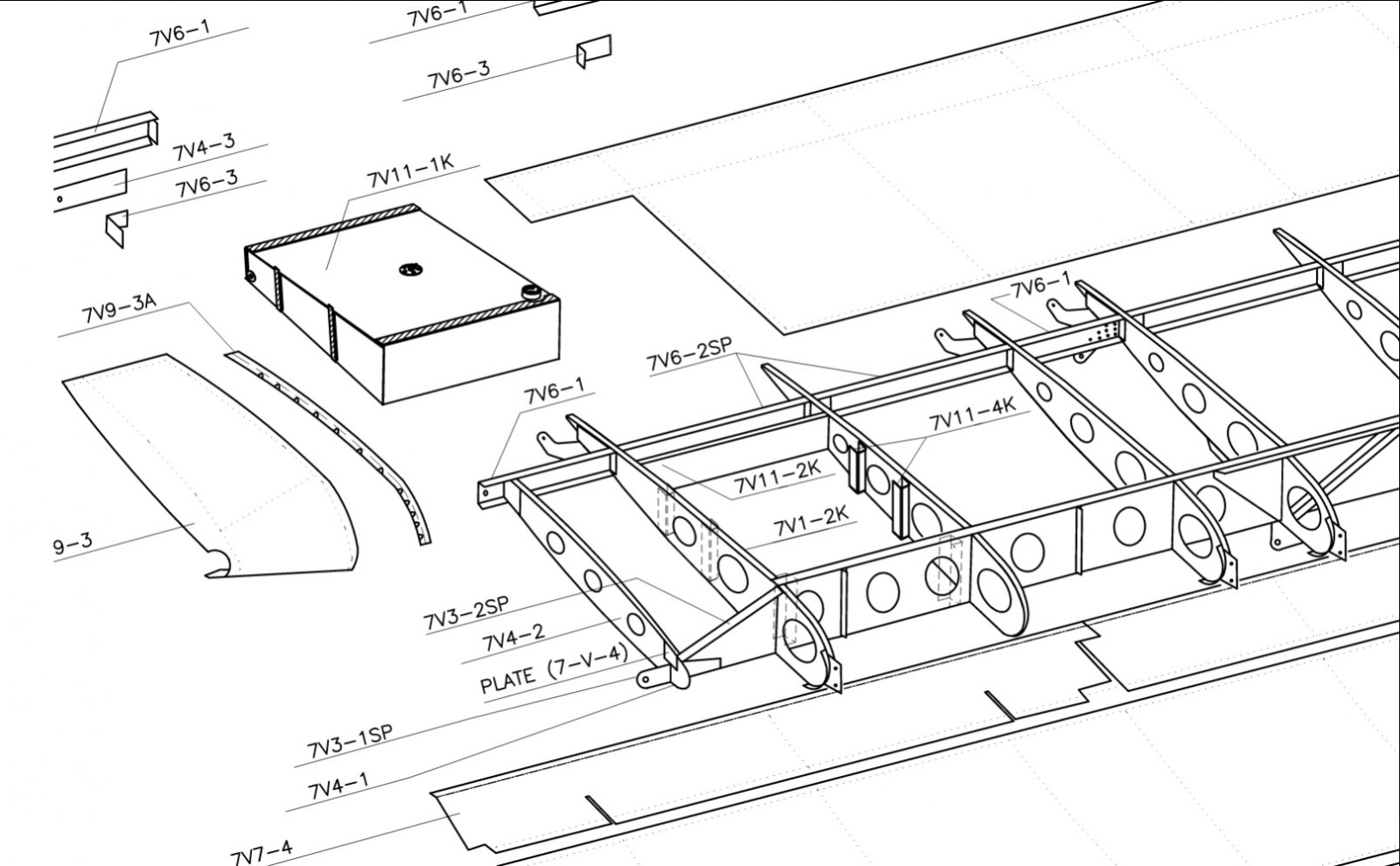
Бак на полосках, прокладках, со всех сторон, на лонжеронах резиновые, чтобы не двигался.
 
Бак на полосках, прокладках, со всех сторон, на лонжеронах резиновые, чтобы не двигался.
Ну это чтоб в стороны не сдвигался, как я понимаю. А висит он на чем ? На лентах ? или просто на нижнюю обшивку опирается и все? Какой обьем бака?
 
Баки по 40 л. Лежит на обшивке через прокладки.
Странное решение. Хотя если посчитать количество заклепок и усилие на отрыв на них то вроде как все в порядке. Но все таки как то не по авиационному. Как то ремонтировал итальянский самолет примерно такой же конструкции крыльев как на вашем самолете, так там бак тоже вкладывался в крыло под обшивку и с четырех сторон немного монтажной пены надуто от смещения но опирался он все таки не на обшивку ,а на специально вклепанные по углам уголки из дюраля. С другой стороны если посчитать площадь той пены то выходило что он и на ней прекрасно держался бы.
 
Пена хорошее решение, не хочется пачкать пеной, и если прольёшь бензин при заправке, с пеной ни чего не станет.?
 
Баки по 40 л. Лежит на обшивке через прокладки.
Это сильнее Фауста Гете!
Заклепки на отрыв считаете на равномерно распределенную нагрузку, вероятно - а понятие цепного разрушения незнакомо?.
 
Ну а кессон же ещё тогда слабее, чем баки от Андрея! Так что все надёжно в этом случае! У меня вообще на пене держались без какого-либо дополнительного крепления, 10лет отлетал, нету замечаний, монтажная пена не разьедалась.
 
Назад
Вверх